University Of Applied Science And Robotics

 

Year Of Graduation

2019-2020    Semster 2

 

Project

University Of Applied Science And Robotics

 

Student

Mahmoud Alborgly – Marwan Aytoni

 

The Concept

 

 

 

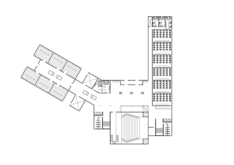
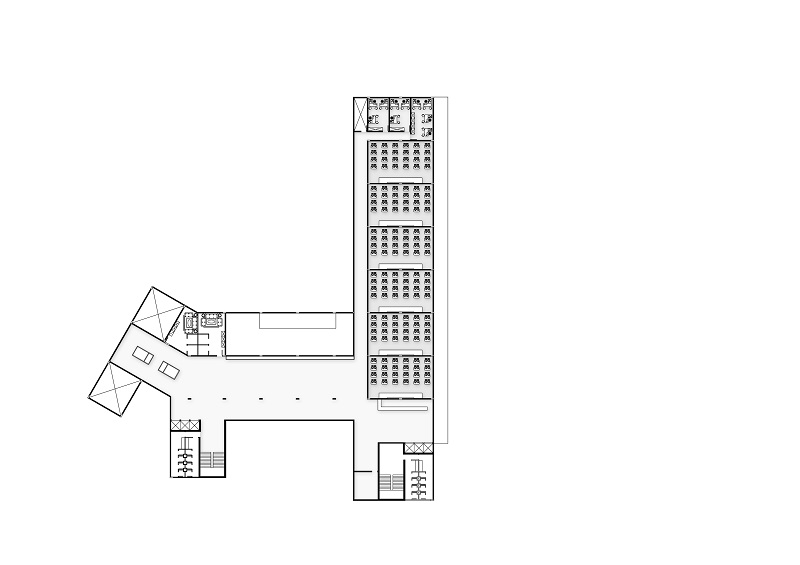
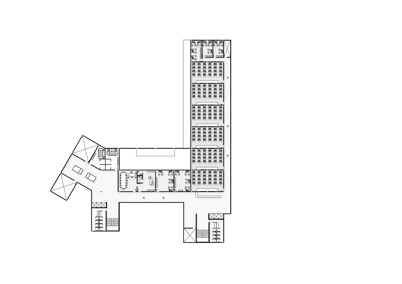
Applied university for mechatronics and robot  applications, it is distinguished by its functional specifications  that requires a large number of laboratories and workshops compared to the number of classrooms and study halls.

The main  idea of the project is the central space in the site, which resulted from the  intersection of   movement  axes  , where the main amphitheater was proposed .

Linear organization  parallel to the street line with main public entrance and private one links to the university directorates .

Distinctive spaces have been allocated for  the robot making  and its necessary control equipments.

A Pavilion area has also been   proposed in order to review the main product in each college and  department.

 

e- mail